#107 | Umbau Gedenkstätte Lindenstrasse Potsdam, denkmalgeschütztes Gebäudeensemble | 2023

Die Gedenkstätte Lindenstraße in Potsdam ist ein Erinnerungsort mit bewegter Geschichte: Einst Gerichts- und Gefängnisstandort, heute ein bedeutender Ort des Gedenkens an Opfer politischer Verfolgung und Gewalt in den unterschiedlichen Diktaturen des 20. Jahrhunderts in Deutschland – aber auch für den Sieg der Demokratie in der Friedlichen Revolution 1989/90.

Im Rahmen einer Machbarkeitsstudie war es die Aufgabe die baulichen Voraussetzungen für eine zeitgemäße, barrierefreie und besucherfreundliche Nutzung zu prüfen und weiterzuentwickeln. Hierbei galt es, architektonische Lösungen zu entwickeln, die den Charakter des Ortes respektieren, die Besuchenden ein intuitives Erleben ermöglichen und die Zugänglichkeit für alle Menschen verbessern.

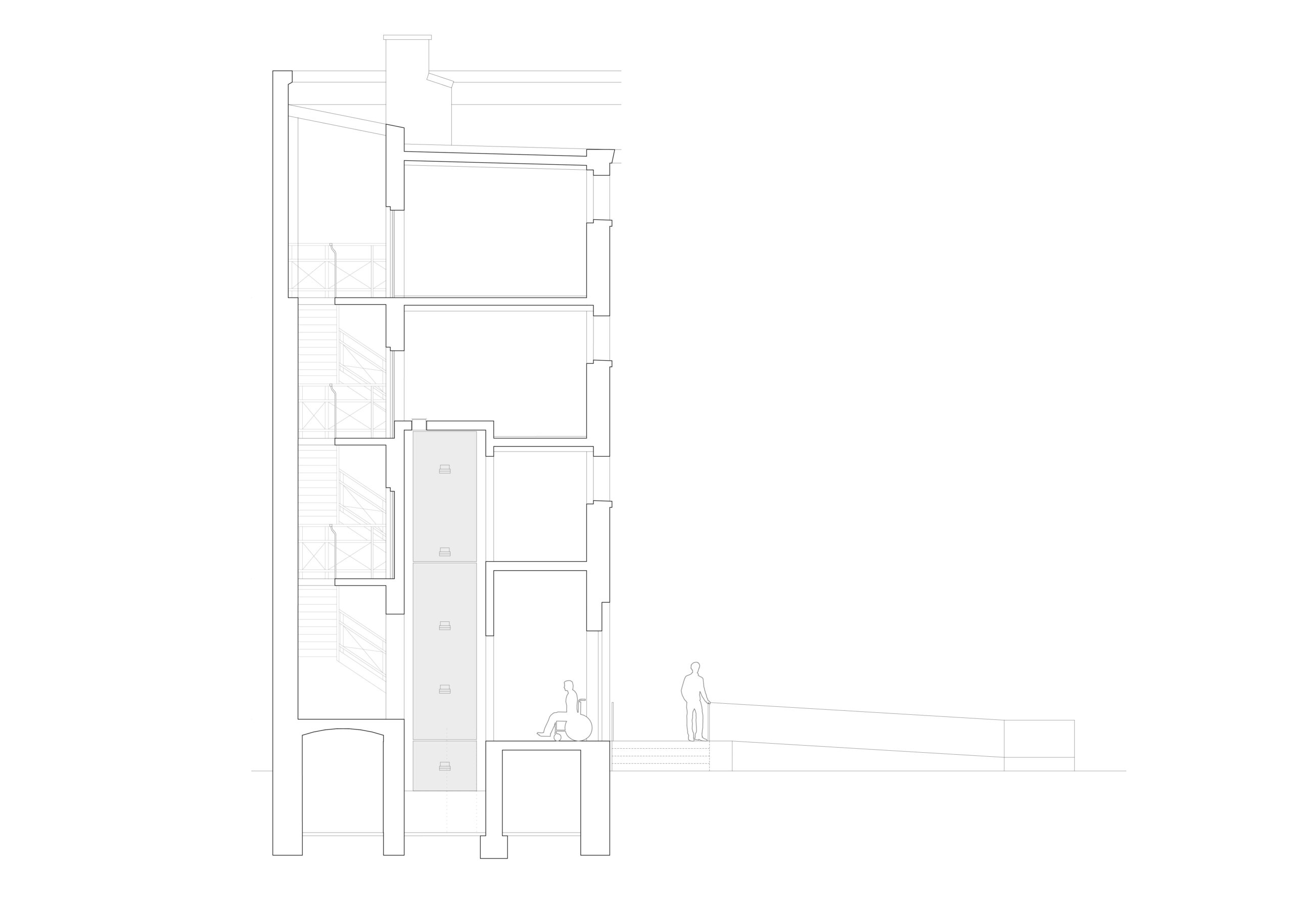
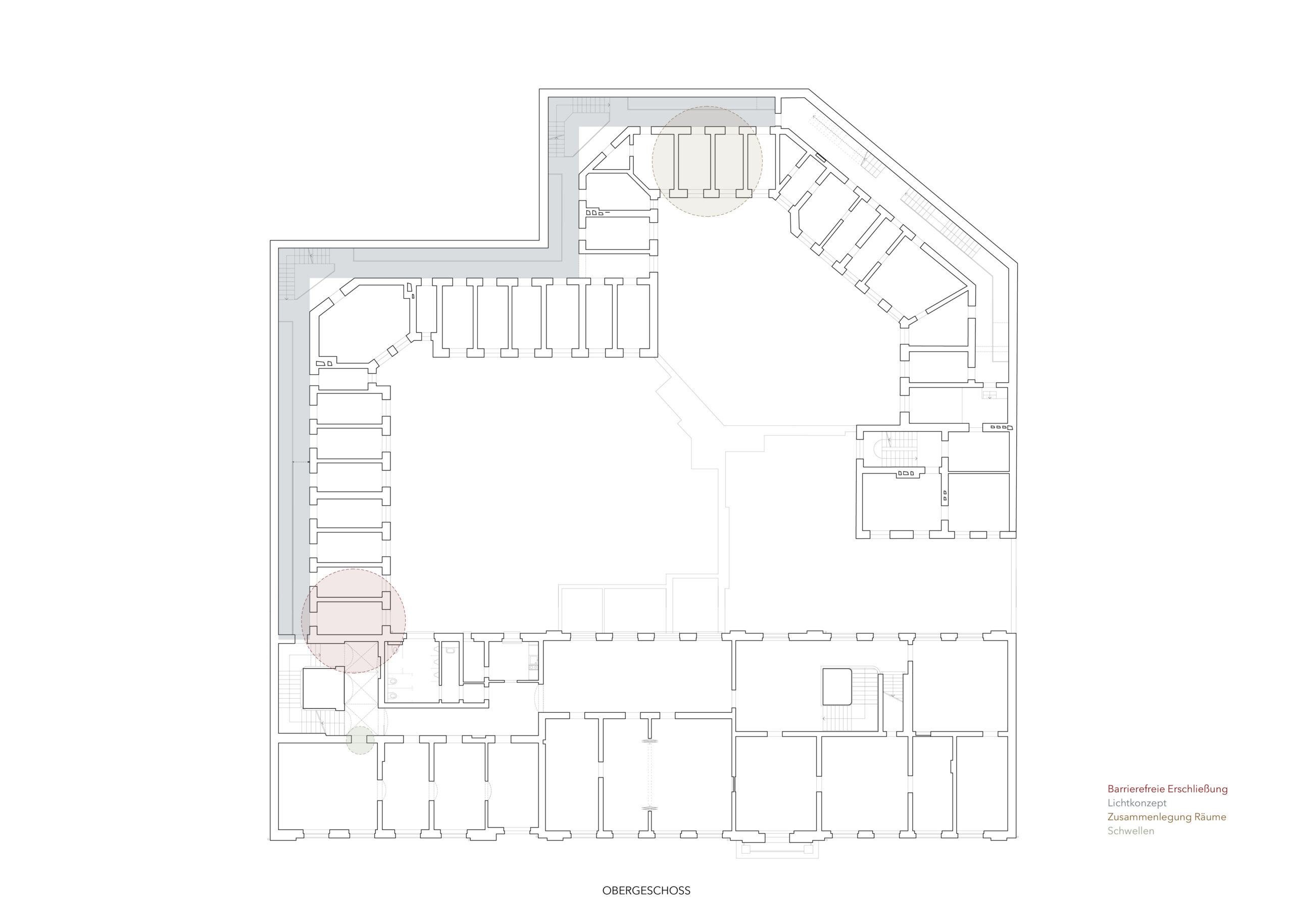
Ein zentrales Element der Studie war daher die barrierefreie Erschließung. Bisher war diese nur eingeschränkt über einen Hublift im Inneren des Gebäudes möglich, der das Erscheinungsbild störte und funktional nicht ausreichte. Das Konzept sieht den Einbau eines neuen, standardisierten Aufzuges vor, der den Innenhof mit dem Erd- und Obergeschoss verbindet, ohne die bestehenden Fluchtwege oder die Gebäudesubstanz zu beeinträchtigen. Ergänzt wird dieser durch eine neue Rampenanlage im Hof sowie die systematische Reduzierung von Schwellen, um eine durchgängig hindernisarme Wegeführung zu gewährleisten.

Darüber hinaus wurde die Zusammenlegung einzelner Räume untersucht, um flexiblere Ausstellungsflächen zu schaffen. Wo zuvor kleinteilige Raumstrukturen die Vermittlung erschwerten, entstehen nun offene, klare Bereiche, die sowohl die historische Authentizität bewahren als auch zeitgemäße Präsentationsformen ermöglichen.

Ein weiterer Schwerpunkt lag auf dem Lichtkonzept. Tageslicht und Kunstlicht werden so aufeinander abgestimmt, dass die besondere Atmosphäre des Ortes erhalten bleibt und zugleich die Lesbarkeit der Ausstellungen verbessert wird. Überkopfverglasungen, ergänzende LED-Paneele und sensibel eingesetzte Beleuchtung verstärken die räumliche Wirkung, ohne den historischen Charakter zu überlagern.